|   取样冷却器适用于温度较高的液体和气体等介质取样,具有结构紧凑、传热效率高、清洗方便、使用寿命长等优点,广泛用于石油、化工、轻工、电力等部门的、加热、换热,冷却器也可做为油泵的自封冷却器。     
 1、单一相取样冷却器SCXQ—IA
 
 
                  
                    | 单-相取样冷却器主要性能表 
                          单-相取样冷却器管口说明表
                            | 管道 | 设计压力 | 3.92MPa | 壳程 | 设计压力 | 常压 |  
                            | 设计温度 | 350℃ | 设计温度 | 60℃ |  
                            | 操作介质 | / | 操作介质 | 水 |  
                            | 换热面积:0.084m2 |  
                          
                            | 规格型号(施工图图号)
 | 操作介质 | 盘管材质 | 设备开口DN |  
                            | 1 | 2 | 3 | 4 | 5 |  
                            | SCXQ-1A-1(S5-10-1) | 油  品 | 20 | 15 | 15 | 20 | 25 | G1/2 |  
                            | SCXQ-1A-2(S5-10-2) | 含硫油品 | 1Cr18Ni9Ti | 15 | 15 | 20 | 25 | G1/2 |  
                            | SCXQ-1A-3(S5-10-3) | 油  气 | 20 | 15 | 8(外) | 20 | 25 | G1/2 |  
                            | SCXQ-1A-4(S5-10-4) | 含硫油气、氢气 | 1Cr18Ni9Ti | 15 | 8(外) | 20 | 25 | G1/2 |  |  |  2、双联取样冷却器SCXQ-IB
 
 
                  
                    | 双联取样冷却器主要性能表 
                          双联相取冷却器管口说明表
                            | 管道 | 设计压力 | 0.58MPa | 壳程 | 设计压力 | 0.58MPa |  
                            | 设计温度 | 172℃ | 设计温度 | 60℃ |  
                            | 操作介质 | 汽、水 | 操作介质 | 水 |  
                            | 换热面积:1.04m2 |  
                          
                            | 编号 | 名称 | 数量 | 公称直径DN | 公称压力PN | 备注 |  
                            | 1 | 水蒸汽入口 | 2 | 10 | / |  |  
                            | 2 | 水蒸汽出口 | 2 | 10 | / |  |  
                            | 3 | 冷却水入口 | 1 | 40 | 2.0 |  |  
                            | 4 | 冷却水出口 | 1 | 40 | 2.0 |  |  
                            | 5 | 排水口 | 1 | 50 | / |  |  
                            | 6 | 上排空口 | 2 | G1/2 | / | 带管塞 |  
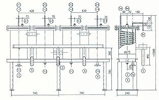
                            | 7 | 下排空口 | 2 | G1/2 | / | 带管塞 |  |  |  3、四联取样冷却器SCXQ-IC
 四联取样冷却器主要性能表
 
                  
                    | 管道 | 设计压力 | 4.62MPa | 壳程 | 设计压力 | 0.58MPa |  
                    | 设计温度 | 275℃ | 设计温度 | 60℃ |  
                    | 操作介质 | 汽、水 | 操作介质 | 水 |  
                    | 换热面积:2.08m2 |  
 
                  
                    | 
                        
                          | 编号 | 名称 | 数量 | 公称直径DN | 公称压力PN | 备注 |  
                          | 1 | 水蒸汽入口 | 4 | 10 | / |  |  
                          | 2 | 水蒸汽入口 | 4 | 10 | / |  |  
                          | 3 | 冷却水入口 | 1 | 40 | 2.0 |  |  
                          | 4 | 冷却水出口 | 1 | 40 | 2.0 |  |  
                          | 5 | 排水口 | 1 | 50 | / |  |  
                          | 6 | 上排空口 | 2 | G1/2 | / | 带管塞 |  
                          | 7 | 下排空口 | 2 | G1/2 | / | 带管塞 |  |  |  |