新门内部资料免费提供,2025年天天彩免费大全,老版跑狗图资料,新天天免费资料大全,新澳2025年全年开奖结果查询

欢迎访问启东春立机械设备有限公司官网!
邮箱地址:cl@qdclgs.com
C2H2V/N型内外筒式乙炔回火防止器
1、产品用途
内外筒式乙炔回火防止器为防爆产品。适用于乙炔气(或其它可燃气体)管道中间和乙炔气用户点,能有效防止和消除管道回火。其原理是:在产生管道回火的情况下,(1)由于瞬时压力升高时使位于底部的阀芯下落堵位气口及时切断气源;(2)当瞬时压力升高到大于0.177~0.275MPa时,设置在筒体顶部的安全膜片爆破随即泄压,切断火源,确保系统安全。对于乙炔气或其它液化气的供应单位和使用单位来说,如果还没有其它能有效防止回火措施的话,本产品应是不可缺少的。
2、结构特点
2.1内筒体顶端为安全膜盖结构,当系统压力升至0.177~0.275MPa时膜片会自动爆破泄压。因此用户在调换膜片时,不得使用厚度超过0.05的铝板,且一定要经过试验后才能安装。
2.2内外筒体具有贮气,稳压作用,能减少供气压力的波动,有利于平稳燃烧。
2.3本产品在使有用前应拧开水位阀芯,从孔口灌水至溢出即拧紧,不得漏气和漏水,灌水具有防止回火和清选 气体的作用。
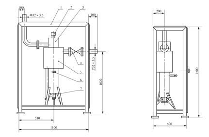
3、产品外形尺寸及部件名称见下图
4、主要技术参数
公称通径(mm)
DN25
设计压力(MPa)
PN0.15
使用压力(MPa)
PN0.02~0.12
使用温度(℃)
常温
流量(Nm3/h)
35
爆破压力(MPa)
PN0.177~0.275
重量(kg)
220
 说明:连接法兰按JB/T81-94设计制造,用户如需选用其它标准和规格的连接法兰,请在订货中说明。
 
主站蜘蛛池模板: 二四六香港全年资料大全| 新澳门内部资料精准大全i| 电影韩国人性| 2023年国产网络游戏| 香港打一生肖是什么| 澳洲幸运5开奖官网开奖1680期| 新澳门夸奖记录| 扫码免费领取的套路| 888影视网剧情篇迅雷| 澳门选一肖一码期期期中准| 开奖记录澳门开奖记录怎么下载| 6010电影网| 4949澳门正版免费资料全解2022| 澳门资料大全正版资料2021年主页 | site:www.jxxyzsty.com| 澳门最准最快精准资料| 今日精准预测汇总| 白小姐三肖三码精准2023| 免费高清在线观看韩国| 新奥彩管家婆精准免费大全| 2021年电影排行榜前十名| 电视剧黑暗与黎明全集免费观看| 2024新澳门正版全年免费资料| 一肖三码免费大公开| 黑土无言电视剧星辰影院| 墙脏了怎么洗干净| 698333香港神算天师开奖| 何仙姑网站资料一肖凤凰| 香港惠泽社资料大全一| 成人用品店卖的飞机杯| 2024澳门天天开好彩大全开奖记录走势图| 红财神澳门资料精准版| 2023澳门最好正版精准资料 | 澳门王中王免费大全资料免费公开| 澳门最精准正最精准龙门客栈免费 | 曾道精准内部三肖三码| 男男体育生np| 二四六天天彩资料正版使用方法| 007之女王密使| 新澳门天天好彩资料网址| 找正缘最准的方法|